2560 Hawks Preserve Dr, Fort Myers, FL 33905
Toggle Navigation
Images
Floor Plans
Map
2560 Hawks Preserve Dr
Fort Myers, FL 33905
Scroll to Content
Images
Slideshow
Photo Grid
Hide
Previous
Next
Show more
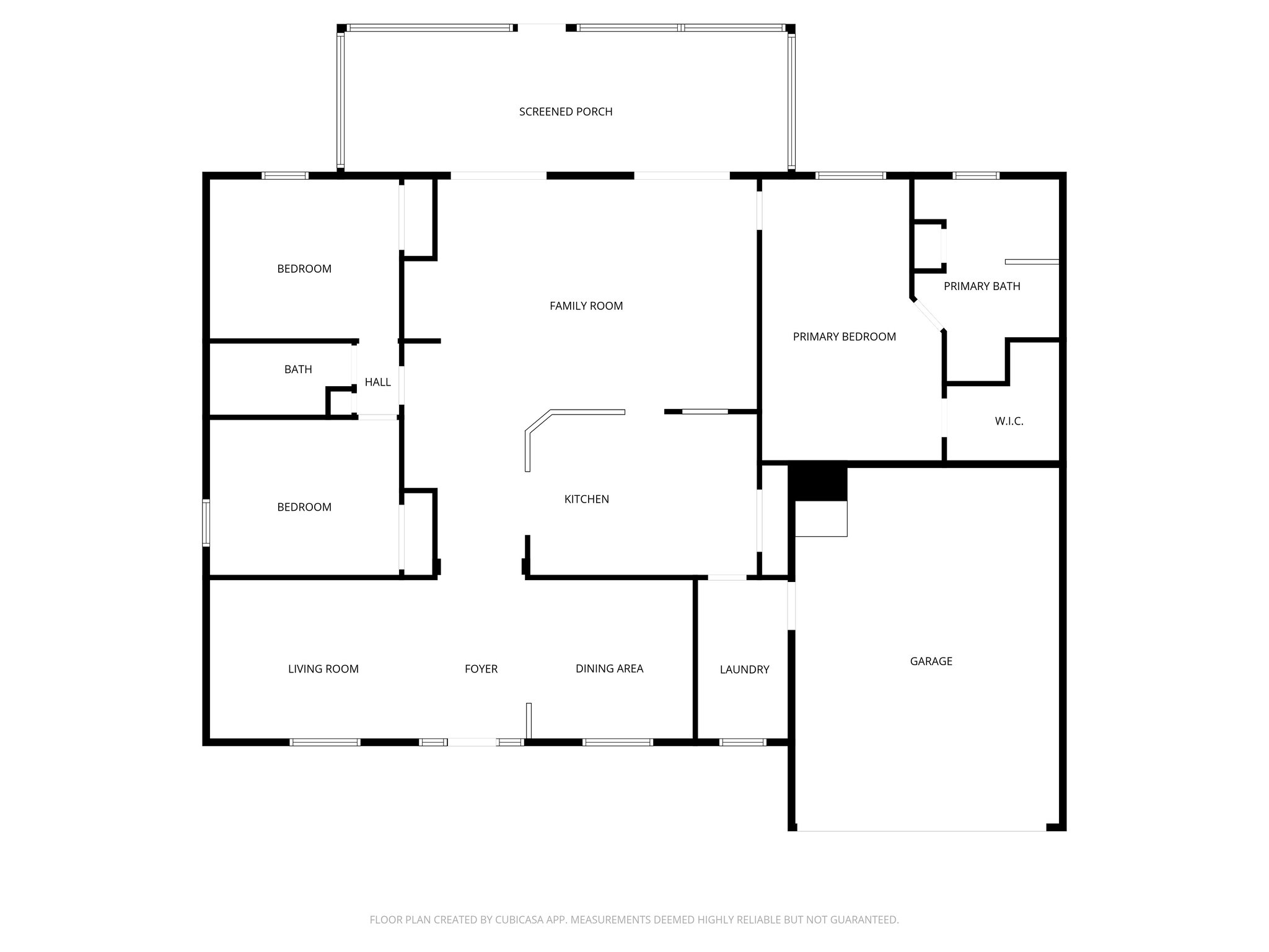
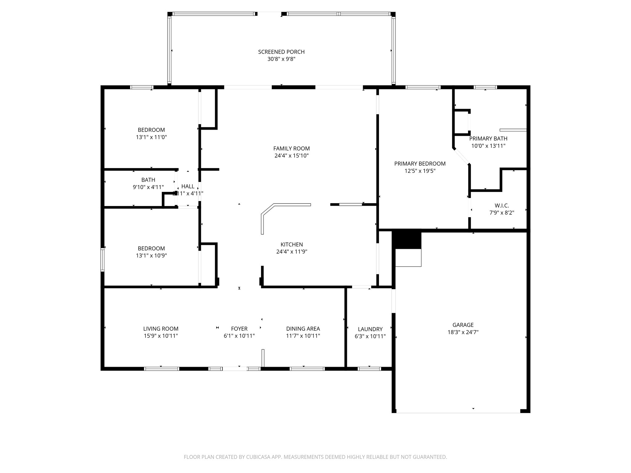
Floor Plans
Slideshow
Photo Grid
Hide
Previous
Next